Koegelwieckplantsoen 12
2651 NL, Berkel En Rodenrijs
€ 700.000,- k.k.
+ 40
+ 39
Omschrijving
Wonen in een groene, kindvriendelijke wijk met singels en speelplekken, klinkt goed toch?
Aan de Koegelwieckplantsoen 12 is het de werkelijkheid. Deze charmante tussenwoning met 166 m2 woonplezier is nu beschikbaar met een royale living, 4 slaapkamers en een zonnige tuin grenzend aan het water. Je auto parkeer je lekker dichtbij, makkelijk en comfortabel. Zie jij je jezelf hier al thuiskomen?
Indeling:
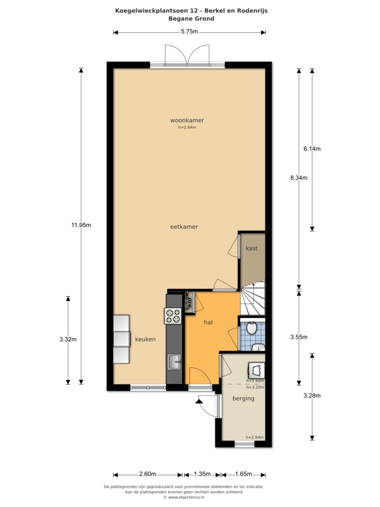
Begane grond: open de voordeur aan de voorzijde en je komt binnen in de hal met het toilet, meterkast, trap naar boven en ruimte voor de garderobe. Door de vele ramen en de openslaande deuren met toegang tot de tuin is de living lekker licht. Koken doe je aan de voorzijde. Relaxen met een goed boek aan de achterzijde met zicht op de grote tuin. Zie jij jezelf al genieten van de tuin en de omgeving?
1e Verdieping: meer ruimte vind je boven. Via de trap in de hal bereik je de eerste verdieping. Met 2 ruime slaapkamers afmetingen respectievelijk ca. (419/365 x 575 cm.) en ca. (273 x 359 cm.) en een moderne badkamer welke voorzien is van een breed wastafelmeubel, bubbelbad en een inloopdouche heb je hier genoeg privacy. Op de overloop vind je nog een apart modern toilet.
2e Verdieping: nog een trap omhoog vind je ongekend ruime slaapkamers afmetingen respectievelijk ca. (349/245 x 575 cm.) en ca. (468 x 575 cm.), waarbij de slaapkamer aan de voorzijde met een tuitgevel een aantrekkelijk plafondhoogte heeft van maar liefst 3.61 meter en waarbij de slaapkamer aan de achterzijde beschikt over een grote kunststof dakkapel van 4.20 meter met een rolluik.
Diversen:
-Begane grond is voorzien van een plavuizen vloer met comfortabele vloerverwarming;
-De woning beschikt over 9 zonnepanelen;
-Parkeergelegenheid op eigen terrein voor 2 auto’s:
-Voorzieningen zoals scholen, kinderdagverblijf en natuurspeeltuin “De tuin van Floddertje” zijn op slechts enkele minuten loopafstand;
-Oplevering: uiterlijk 8 weken na oplevering nieuwbouwwoning verkopers (prognose Koegelwieckplantsoen 12, maart 2026).
Deze woning heeft een eigen unieke woningwebsite. Download de brochure voor de link naar de website waar u alle gegevens van de woning kunt vinden.
Move.nl Dossier
Wanneer u bij ons een bezichtiging heeft ingepland, krijgt u toegang tot het Move.nl bezichtigingsdossier van de woning.
Biedlogboek
Vanaf 1 januari 2023 zijn makelaars wettelijk verplicht een biedlogboek bij te houden bij de verkoop van bestaande woningen (en wanneer de koper en/of de verkoper een particulier is). Biedingen kunt u per die datum, en indien gewenst, nog steeds mondeling met ons bespreken maar dient u daarna digitaal aan ons te bevestigen via uw MOVE-account. Het biedlogboek is niet van toepassing bij de verkoop van nieuwbouw, recreatiewoningen, bedrijfswoningen, garageboxen, bouwkavels, woon-/bedrijfspanden en (agrarische) bedrijfsobjecten zonder woonbestemming.
Toelichtingsclausule BBMI/NEN2580
De meetinstructie is gebaseerd op de BBMI/NEN2580. De meetinstructie is bedoeld om een meer eenduidige manier van meten toe te passen voor het geven van een indicatie van de gebruiksoppervlakte. De meetinstructie sluit verschillen in meetuitkomsten niet volledig uit, door bijvoorbeeld interpretatieverschillen, afrondingen of beperkingen bij het uitvoeren van de meting.
Rechtsgeldige koopovereenkomst pas ná ondertekening
Een mondelinge overeenstemming tussen de particuliere verkoper en de particuliere koper is niet rechtsgeldig. Met andere woorden:
er is geen koop. Er is pas sprake van een rechtsgeldige koop als de particuliere verkoper en de particuliere koper de koopovereenkomst hebben ondertekend. Dit vloeit voort uit artikel 7:2 Burgerlijk Wetboek. Een bevestiging van de mondelinge overeenstemming per e-mail
of een toegestuurd concept van de koopovereenkomst wordt overigens niet gezien als een ‘ondertekende koopovereenkomst’.
Bovenstaande tekst is met de grootst mogelijke zorg samengesteld. Er kunnen geen rechten aan worden ontleend. De tekst is uitsluitend bedoeld om een goede indruk van het object te geven.
Wonen in een groene, kindvriendelijke wijk met singels en speelplekken, klinkt goed toch?
Aan de Koegelwieckplantsoen 12 is het de werkelijkheid. Deze charmante tussenwoning met 166 m2 woonplezier is nu beschikbaar met een royale living, 4 slaapkamers en een zonnige tuin grenzend aan het water. Je auto parkeer je lekker dichtbij, makkelijk en comfortabel. Zie jij je jezelf hier al thuiskomen?
Indeling:
Begane grond: open de voordeur aan de voorzijde en je komt binnen in de hal met het toilet, meterkast, trap naar boven en ruimte voor de garderobe. Door de vele ramen en de openslaande deuren met toegang tot de tuin is de living lekker licht. Koken doe je aan de voorzijde. Relaxen met een goed boek aan de achterzijde met zicht op de grote tuin. Zie jij jezelf al genieten van de tuin en de omgeving?
1e Verdieping: meer ruimte vind je boven. Via de trap in de hal bereik je de eerste verdieping. Met 2 ruime slaapkamers afmetingen respectievelijk ca. (419/365 x 575 cm.) en ca. (273 x 359 cm.) en een moderne badkamer welke voorzien is van een breed wastafelmeubel, bubbelbad en een inloopdouche heb je hier genoeg privacy. Op de overloop vind je nog een apart modern toilet.
2e Verdieping: nog een trap omhoog vind je ongekend ruime slaapkamers afmetingen respectievelijk ca. (349/245 x 575 cm.) en ca. (468 x 575 cm.), waarbij de slaapkamer aan de voorzijde met een tuitgevel een aantrekkelijk plafondhoogte heeft van maar liefst 3.61 meter en waarbij de slaapkamer aan de achterzijde beschikt over een grote kunststof dakkapel van 4.20 meter met een rolluik.
Diversen:
-Begane grond is voorzien van een plavuizen vloer met comfortabele vloerverwarming;
-De woning beschikt over 9 zonnepanelen;
-Parkeergelegenheid op eigen terrein voor 2 auto’s:
-Voorzieningen zoals scholen, kinderdagverblijf en natuurspeeltuin “De tuin van Floddertje” zijn op slechts enkele minuten loopafstand;
-Oplevering: uiterlijk 8 weken na oplevering nieuwbouwwoning verkopers (prognose Koegelwieckplantsoen 12, maart 2026).
Deze woning heeft een eigen unieke woningwebsite. Download de brochure voor de link naar de website waar u alle gegevens van de woning kunt vinden.
Move.nl Dossier
Wanneer u bij ons een bezichtiging heeft ingepland, krijgt u toegang tot het Move.nl bezichtigingsdossier van de woning.
Biedlogboek
Vanaf 1 januari 2023 zijn makelaars wettelijk verplicht een biedlogboek bij te houden bij de verkoop van bestaande woningen (en wanneer de koper en/of de verkoper een particulier is). Biedingen kunt u per die datum, en indien gewenst, nog steeds mondeling met ons bespreken maar dient u daarna digitaal aan ons te bevestigen via uw MOVE-account. Het biedlogboek is niet van toepassing bij de verkoop van nieuwbouw, recreatiewoningen, bedrijfswoningen, garageboxen, bouwkavels, woon-/bedrijfspanden en (agrarische) bedrijfsobjecten zonder woonbestemming.
Toelichtingsclausule BBMI/NEN2580
De meetinstructie is gebaseerd op de BBMI/NEN2580. De meetinstructie is bedoeld om een meer eenduidige manier van meten toe te passen voor het geven van een indicatie van de gebruiksoppervlakte. De meetinstructie sluit verschillen in meetuitkomsten niet volledig uit, door bijvoorbeeld interpretatieverschillen, afrondingen of beperkingen bij het uitvoeren van de meting.
Rechtsgeldige koopovereenkomst pas ná ondertekening
Een mondelinge overeenstemming tussen de particuliere verkoper en de particuliere koper is niet rechtsgeldig. Met andere woorden:
er is geen koop. Er is pas sprake van een rechtsgeldige koop als de particuliere verkoper en de particuliere koper de koopovereenkomst hebben ondertekend. Dit vloeit voort uit artikel 7:2 Burgerlijk Wetboek. Een bevestiging van de mondelinge overeenstemming per e-mail
of een toegestuurd concept van de koopovereenkomst wordt overigens niet gezien als een ‘ondertekende koopovereenkomst’.
Bovenstaande tekst is met de grootst mogelijke zorg samengesteld. Er kunnen geen rechten aan worden ontleend. De tekst is uitsluitend bedoeld om een goede indruk van het object te geven.