Korhoen 11
2651 RK, Berkel En Rodenrijs
€ 525.000,- k.k.
+ 37
+ 36
Omschrijving
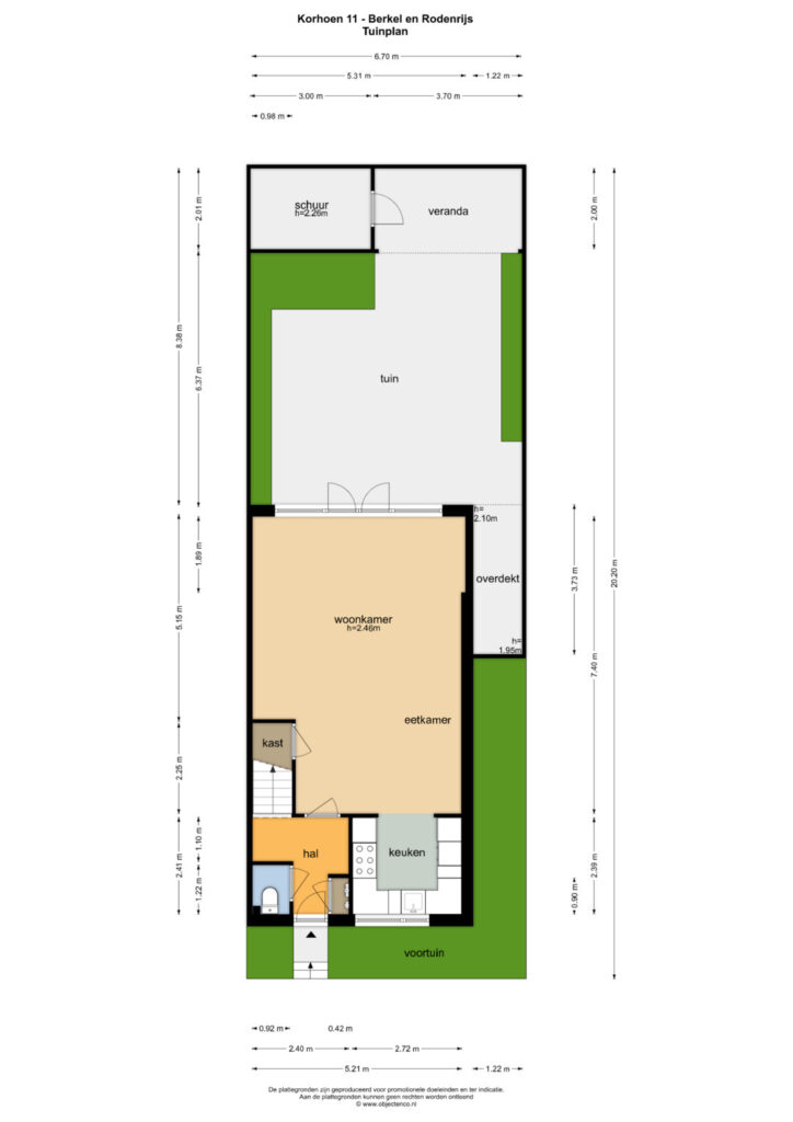
Heerlijk ruim wonen in deze hoekwoning gelegen in een kindvriendelijke en groen opgezette wijk. Iets voor jou? Dan hebben wij goed nieuws! Welkom aan de Korhoen 11, een hoekwoning met 112 m2 woonoppervlak, een ruime living, 4 slaapkamers en een tuin op het zonnige westen. Hier maak je een lekker ommetje en spelen de kinderen veilig buiten. Parkeren? Dat doe je gemakkelijk op openbaar terrein, en je bent zo in het gezellige centrum van Berkel en Rodenrijs.
Indeling:
Begane grond: Via de voordeur van deze charmante woning stap je de hal binnen. Hier vind je een separaat toilet, de meterkast en een trapopgang naar de 1e verdieping. De uitgebouwde woonkamer heeft een vaste kast en dubbele tuindeuren naar de zonnige tuin. Door de open verbinding tussen keuken, woonkamer en de vele raampartijen oogt de ruimte lekker licht. De keuken beschikt over diverse inbouwapparatuur te weten: Boretti gasfornuis, vaatwasser, combimagnetron, koelkast, vriezer en een afzuigkap. Het geheel is afgewerkt met massief houten vloerdelen.
1e Verdieping: Overloop met toegang tot de drie netjes afgewerkte slaapkamers van respectievelijk ca. (321 x 231 cm), (420 x 284 cm) en (365 x 284 cm) alle met een laminaatvloer. De badkamer heeft een toilet, ligbad, douchecabine en een wastafel.
2e Verdieping: Voorzolder met diverse bergruimten en met de wasmachine- en droger aansluiting. Keurig afgewerkte 4e slaapkamer van ca. (495 x 272/335 cm) voorzien van 2 dakramen.
Diversen:
-Stenen berging met aangebouwde veranda in de sfeervolle achtertuin;
-Praktische fietsenberging in de zij-tuin;
-Gelegen in een kindvriendelijke wijk met speelveldjes;
-Op loopafstand van RandstadRail Westpolder en gezellige horeca en winkels.
-Oplevering: februari/begin maart 2026.
Deze woning heeft een eigen unieke woningwebsite. Download de brochure voor de link naar de website waar u alle gegevens van de woning kunt vinden.
Move.nl Dossier
Wanneer u bij ons een bezichtiging heeft ingepland, krijgt u toegang tot het Move.nl bezichtigingsdossier van de woning.
Biedlogboek
Vanaf 1 januari 2023 zijn makelaars wettelijk verplicht een biedlogboek bij te houden bij de verkoop van bestaande woningen (en wanneer de koper en/of de verkoper een particulier is). Biedingen kunt u per die datum, en indien gewenst, nog steeds mondeling met ons bespreken maar dient u daarna digitaal aan ons te bevestigen via uw MOVE-account. Het biedlogboek is niet van toepassing bij de verkoop van nieuwbouw, recreatiewoningen, bedrijfswoningen, garageboxen, bouwkavels, woon-/bedrijfspanden en (agrarische) bedrijfsobjecten zonder woonbestemming.
Toelichtingsclausule BBMI/NEN2580
De meetinstructie is gebaseerd op de BBMI/NEN2580. De meetinstructie is bedoeld om een meer eenduidige manier van meten toe te passen voor het geven van een indicatie van de gebruiksoppervlakte. De meetinstructie sluit verschillen in meetuitkomsten niet volledig uit, door bijvoorbeeld interpretatieverschillen, afrondingen of beperkingen bij het uitvoeren van de meting.
Rechtsgeldige koopovereenkomst pas ná ondertekening
Een mondelinge overeenstemming tussen de particuliere verkoper en de particuliere koper is niet rechtsgeldig. Met andere woorden:
er is geen koop. Er is pas sprake van een rechtsgeldige koop als de particuliere verkoper en de particuliere koper de koopovereenkomst hebben ondertekend. Dit vloeit voort uit artikel 7:2 Burgerlijk Wetboek. Een bevestiging van de mondelinge overeenstemming per e-mail
of een toegestuurd concept van de koopovereenkomst wordt overigens niet gezien als een ‘ondertekende koopovereenkomst’.
Bovenstaande tekst is met de grootst mogelijke zorg samengesteld. Er kunnen geen rechten aan worden ontleend. De tekst is uitsluitend bedoeld om een goede indruk van het object te geven.
Heerlijk ruim wonen in deze hoekwoning gelegen in een kindvriendelijke en groen opgezette wijk. Iets voor jou? Dan hebben wij goed nieuws! Welkom aan de Korhoen 11, een hoekwoning met 112 m2 woonoppervlak, een ruime living, 4 slaapkamers en een tuin op het zonnige westen. Hier maak je een lekker ommetje en spelen de kinderen veilig buiten. Parkeren? Dat doe je gemakkelijk op openbaar terrein, en je bent zo in het gezellige centrum van Berkel en Rodenrijs.
Indeling:
Begane grond: Via de voordeur van deze charmante woning stap je de hal binnen. Hier vind je een separaat toilet, de meterkast en een trapopgang naar de 1e verdieping. De uitgebouwde woonkamer heeft een vaste kast en dubbele tuindeuren naar de zonnige tuin. Door de open verbinding tussen keuken, woonkamer en de vele raampartijen oogt de ruimte lekker licht. De keuken beschikt over diverse inbouwapparatuur te weten: Boretti gasfornuis, vaatwasser, combimagnetron, koelkast, vriezer en een afzuigkap. Het geheel is afgewerkt met massief houten vloerdelen.
1e Verdieping: Overloop met toegang tot de drie netjes afgewerkte slaapkamers van respectievelijk ca. (321 x 231 cm), (420 x 284 cm) en (365 x 284 cm) alle met een laminaatvloer. De badkamer heeft een toilet, ligbad, douchecabine en een wastafel.
2e Verdieping: Voorzolder met diverse bergruimten en met de wasmachine- en droger aansluiting. Keurig afgewerkte 4e slaapkamer van ca. (495 x 272/335 cm) voorzien van 2 dakramen.
Diversen:
-Stenen berging met aangebouwde veranda in de sfeervolle achtertuin;
-Praktische fietsenberging in de zij-tuin;
-Gelegen in een kindvriendelijke wijk met speelveldjes;
-Op loopafstand van RandstadRail Westpolder en gezellige horeca en winkels.
-Oplevering: februari/begin maart 2026.
Deze woning heeft een eigen unieke woningwebsite. Download de brochure voor de link naar de website waar u alle gegevens van de woning kunt vinden.
Move.nl Dossier
Wanneer u bij ons een bezichtiging heeft ingepland, krijgt u toegang tot het Move.nl bezichtigingsdossier van de woning.
Biedlogboek
Vanaf 1 januari 2023 zijn makelaars wettelijk verplicht een biedlogboek bij te houden bij de verkoop van bestaande woningen (en wanneer de koper en/of de verkoper een particulier is). Biedingen kunt u per die datum, en indien gewenst, nog steeds mondeling met ons bespreken maar dient u daarna digitaal aan ons te bevestigen via uw MOVE-account. Het biedlogboek is niet van toepassing bij de verkoop van nieuwbouw, recreatiewoningen, bedrijfswoningen, garageboxen, bouwkavels, woon-/bedrijfspanden en (agrarische) bedrijfsobjecten zonder woonbestemming.
Toelichtingsclausule BBMI/NEN2580
De meetinstructie is gebaseerd op de BBMI/NEN2580. De meetinstructie is bedoeld om een meer eenduidige manier van meten toe te passen voor het geven van een indicatie van de gebruiksoppervlakte. De meetinstructie sluit verschillen in meetuitkomsten niet volledig uit, door bijvoorbeeld interpretatieverschillen, afrondingen of beperkingen bij het uitvoeren van de meting.
Rechtsgeldige koopovereenkomst pas ná ondertekening
Een mondelinge overeenstemming tussen de particuliere verkoper en de particuliere koper is niet rechtsgeldig. Met andere woorden:
er is geen koop. Er is pas sprake van een rechtsgeldige koop als de particuliere verkoper en de particuliere koper de koopovereenkomst hebben ondertekend. Dit vloeit voort uit artikel 7:2 Burgerlijk Wetboek. Een bevestiging van de mondelinge overeenstemming per e-mail
of een toegestuurd concept van de koopovereenkomst wordt overigens niet gezien als een ‘ondertekende koopovereenkomst’.
Bovenstaande tekst is met de grootst mogelijke zorg samengesteld. Er kunnen geen rechten aan worden ontleend. De tekst is uitsluitend bedoeld om een goede indruk van het object te geven.