Zwaluwplein 14
2661 BT, Bergschenhoek
€ 630.000,- k.k.
+ 30
+ 29
Omschrijving
Wat een heerlijk huis! Instapklaar, perfecte lichtinval, modern afgewerkt, uitstekend onderhouden en 160 m2 woonplezier voor het gehele gezin. Welkom aan het Zwaluwplein 14 te Bergschenhoek.
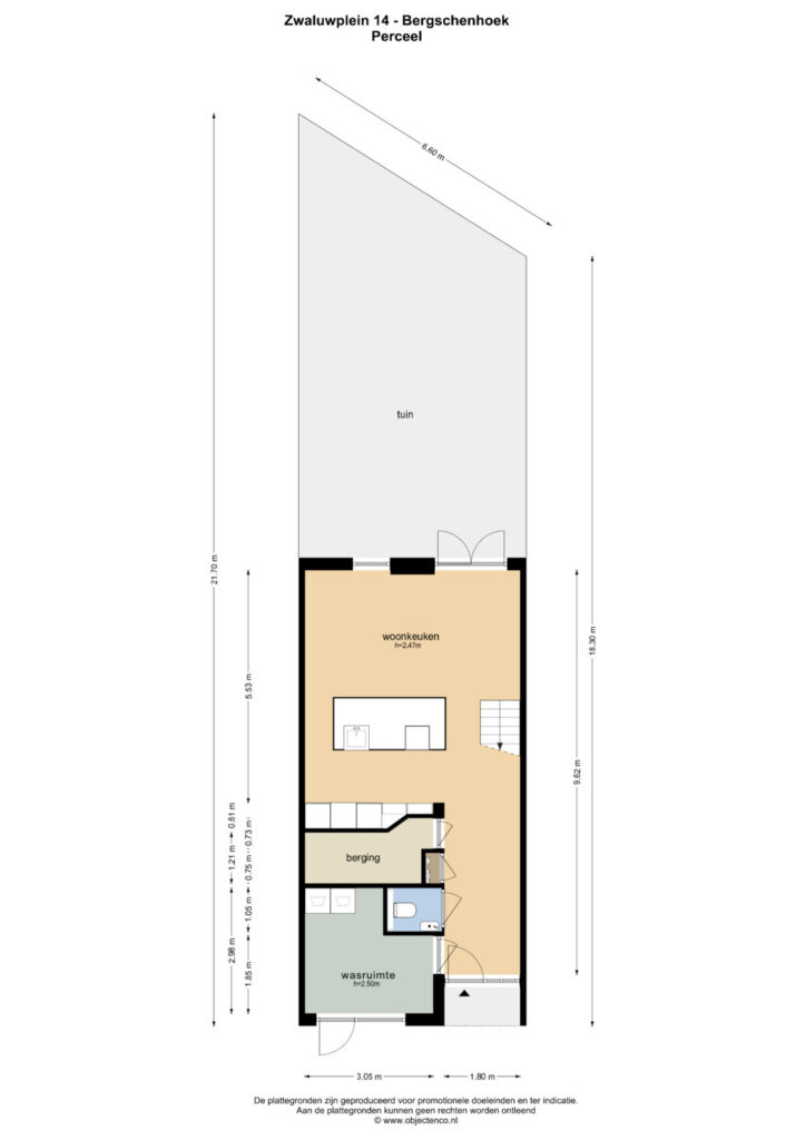
Indeling:
Begane grond: hal/entree met een modern toilet, waskamer en een inpandige berging. Heerlijke woonkeuken waar het met vrienden en familie volop genieten is. Deze fraaie woonkeuken beschikt over div. inbouwapparatuur.
1e Verdieping: heerlijk en strak afgewerkte living met een open haard. Dankzij de hoge ramen aan de voor- en achterzijde stroomt het daglicht naar binnen waardoor de ruimte lekker licht aanvoelt.
2e Verdieping: overloop met toegang tot de 3 keurig afgewerkte slaapkamers van resp. (ca. 269 x 356 cm.), (ca. 450 x 237 cm.) en (ca. 512 x 312 cm.). De trendy badkamer is voorzien van een ligbad, breed wastafelmeubel en een comfortabele inloopdouche.
3e Verdieping: grote vliering.
Diversen:
-In 2023 zijn er 12 zonnepanelen geïnstalleerd;
-Voorbereiding laadpaal aanwezig;
-Er is een mogelijkheid om van de waskamer op de begane grond een 4e slaapkamer/kantoor of praktijkruimte te maken;
-Voorzieningen zoals basisscholen, kinderdagverblijf en winkels zijn op slechts enkele minuten fietsafstand;
-Oplevering: uiterlijk 9 maanden na ondertekening koopovereenkomst of zoveel eerder als verkopers vervangende woonruimte hebben gevonden.
Deze woning heeft een eigen unieke woningwebsite. Download de brochure voor de link naar de website waar u alle gegevens van de woning kunt vinden.
Move.nl Dossier
Wanneer u bij ons een bezichtiging heeft ingepland, krijgt u toegang tot het Move.nl bezichtigingsdossier van de woning.
Biedlogboek
Vanaf 1 januari 2023 zijn makelaars wettelijk verplicht een biedlogboek bij te houden bij de verkoop van bestaande woningen (en wanneer de koper en/of de verkoper een particulier is). Biedingen kunt u per die datum, en indien gewenst, nog steeds mondeling met ons bespreken maar dient u daarna digitaal aan ons te bevestigen via uw MOVE-account. Het biedlogboek is niet van toepassing bij de verkoop van nieuwbouw, recreatiewoningen, bedrijfswoningen, garageboxen, bouwkavels, woon-/bedrijfspanden en (agrarische) bedrijfsobjecten zonder woonbestemming.
Toelichtingsclausule BBMI/NEN2580
De meetinstructie is gebaseerd op de BBMI/NEN2580. De meetinstructie is bedoeld om een meer eenduidige manier van meten toe te passen voor het geven van een indicatie van de gebruiksoppervlakte. De meetinstructie sluit verschillen in meetuitkomsten niet volledig uit, door bijvoorbeeld interpretatieverschillen, afrondingen of beperkingen bij het uitvoeren van de meting.
Rechtsgeldige koopovereenkomst pas ná ondertekening
Een mondelinge overeenstemming tussen de particuliere verkoper en de particuliere koper is niet rechtsgeldig. Met andere woorden: er is geen koop. Er is pas sprake van een rechtsgeldige koop als de particuliere verkoper en de particuliere koper de koopovereenkomst hebben ondertekend. Dit vloeit voort uit artikel 7:2 Burgerlijk Wetboek. Een bevestiging van de mondelinge overeenstemming per e-mail of een toegestuurd concept van de koopovereenkomst wordt overigens niet gezien als een ‘ondertekende koopovereenkomst’.
Bovenstaande tekst is met de grootst mogelijke zorg samengesteld. Er kunnen geen rechten aan worden ontleend. De tekst is uitsluitend bedoeld om een goede indruk van het object te geven.
Wat een heerlijk huis! Instapklaar, perfecte lichtinval, modern afgewerkt, uitstekend onderhouden en 160 m2 woonplezier voor het gehele gezin. Welkom aan het Zwaluwplein 14 te Bergschenhoek.
Indeling:
Begane grond: hal/entree met een modern toilet, waskamer en een inpandige berging. Heerlijke woonkeuken waar het met vrienden en familie volop genieten is. Deze fraaie woonkeuken beschikt over div. inbouwapparatuur.
1e Verdieping: heerlijk en strak afgewerkte living met een open haard. Dankzij de hoge ramen aan de voor- en achterzijde stroomt het daglicht naar binnen waardoor de ruimte lekker licht aanvoelt.
2e Verdieping: overloop met toegang tot de 3 keurig afgewerkte slaapkamers van resp. (ca. 269 x 356 cm.), (ca. 450 x 237 cm.) en (ca. 512 x 312 cm.). De trendy badkamer is voorzien van een ligbad, breed wastafelmeubel en een comfortabele inloopdouche.
3e Verdieping: grote vliering.
Diversen:
-In 2023 zijn er 12 zonnepanelen geïnstalleerd;
-Voorbereiding laadpaal aanwezig;
-Er is een mogelijkheid om van de waskamer op de begane grond een 4e slaapkamer/kantoor of praktijkruimte te maken;
-Voorzieningen zoals basisscholen, kinderdagverblijf en winkels zijn op slechts enkele minuten fietsafstand;
-Oplevering: uiterlijk 9 maanden na ondertekening koopovereenkomst of zoveel eerder als verkopers vervangende woonruimte hebben gevonden.
Deze woning heeft een eigen unieke woningwebsite. Download de brochure voor de link naar de website waar u alle gegevens van de woning kunt vinden.
Move.nl Dossier
Wanneer u bij ons een bezichtiging heeft ingepland, krijgt u toegang tot het Move.nl bezichtigingsdossier van de woning.
Biedlogboek
Vanaf 1 januari 2023 zijn makelaars wettelijk verplicht een biedlogboek bij te houden bij de verkoop van bestaande woningen (en wanneer de koper en/of de verkoper een particulier is). Biedingen kunt u per die datum, en indien gewenst, nog steeds mondeling met ons bespreken maar dient u daarna digitaal aan ons te bevestigen via uw MOVE-account. Het biedlogboek is niet van toepassing bij de verkoop van nieuwbouw, recreatiewoningen, bedrijfswoningen, garageboxen, bouwkavels, woon-/bedrijfspanden en (agrarische) bedrijfsobjecten zonder woonbestemming.
Toelichtingsclausule BBMI/NEN2580
De meetinstructie is gebaseerd op de BBMI/NEN2580. De meetinstructie is bedoeld om een meer eenduidige manier van meten toe te passen voor het geven van een indicatie van de gebruiksoppervlakte. De meetinstructie sluit verschillen in meetuitkomsten niet volledig uit, door bijvoorbeeld interpretatieverschillen, afrondingen of beperkingen bij het uitvoeren van de meting.
Rechtsgeldige koopovereenkomst pas ná ondertekening
Een mondelinge overeenstemming tussen de particuliere verkoper en de particuliere koper is niet rechtsgeldig. Met andere woorden: er is geen koop. Er is pas sprake van een rechtsgeldige koop als de particuliere verkoper en de particuliere koper de koopovereenkomst hebben ondertekend. Dit vloeit voort uit artikel 7:2 Burgerlijk Wetboek. Een bevestiging van de mondelinge overeenstemming per e-mail of een toegestuurd concept van de koopovereenkomst wordt overigens niet gezien als een ‘ondertekende koopovereenkomst’.
Bovenstaande tekst is met de grootst mogelijke zorg samengesteld. Er kunnen geen rechten aan worden ontleend. De tekst is uitsluitend bedoeld om een goede indruk van het object te geven.